物件問い合わせ
株式会社大成住宅
〒350-2201
埼玉県鶴ケ島市富士見2-11-8 パークサイドアベニューTAISEI
宅地建物取引免許/埼玉県知事(6)第017756号
一級建築士事務所/埼玉県知事登録(5)第8958号
建設業許可/埼玉県知事許可(般-03)第56772号
一般不動産投資顧問業/国土交通大臣(一般)第1139号
家を買いたい
分譲住宅を探す
中古戸建てを探す
中古マンションを探す
家を建てたい
注文住宅を建てたい
企画住宅を建てたい
分譲地を探す
土地を探す
家を売りたい
不動産売却相談
オンライン査定
会社情報
会社概要
大成住宅のこだわり
店舗紹介
建築事例
サービス案内
分譲地「Breeze Garden」
分譲・注文住宅「COCOYUNO」
COCOYUNO-注文住宅
注文住宅の5つの魅力
COCOYUNO-企画住宅
Sin(サイン)
彩(いろどり)
U-tras(ユトラス)
COCOYUNO-分譲住宅
不動産売却相談
大成でんき|電気自由化サービス
リフォーム(リノベーション)
保証とアフターサービス
その他
ニュース
トピックス
イベント
よくあるご質問
お客様の声
カタログ
プライバシーポリシー
≪建築条件なし≫緑豊かな住環境で、理想の住まいが叶います!
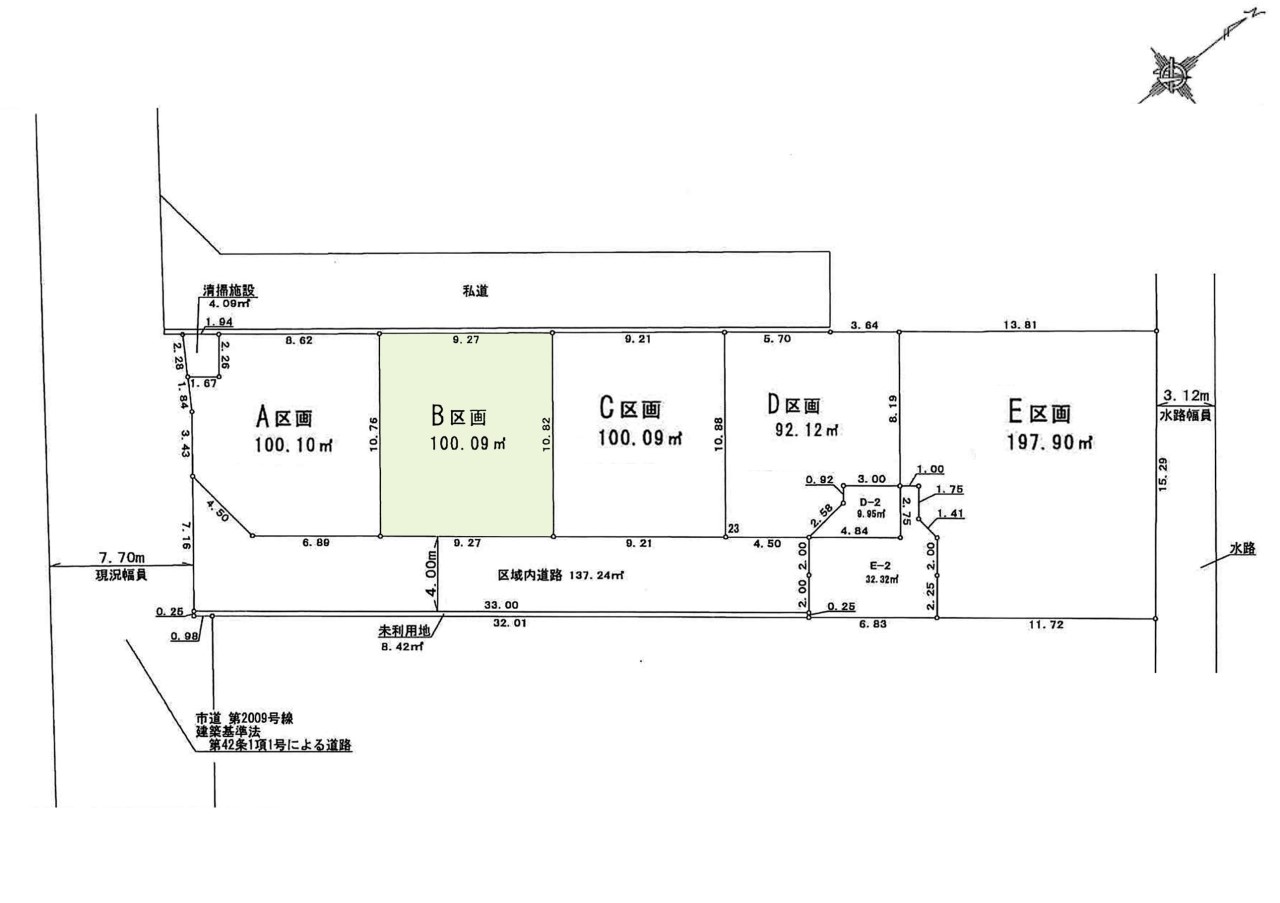
土地 志木市中宗岡5丁目
2590
万円
土地面積 100.09㎡
埼玉県志木市 中宗岡5丁目
東武東上線「志木」駅 バス乗車10分+徒歩7分(いろは橋停)
東武東上線「志木」駅 徒歩27分
物件問い合わせ
大成住宅
>
物件
>
埼玉県
>
志木市
>
土地 志木市中宗岡5丁目
物件TOP
物件詳細情報
周辺環境・地図
×
現地
現地 (2)
外観
当社施工例:シックな色を基調としたスタイリッシュな外観。
バルコニー
当社施工例:木目調パネルがアクセントとなる、物干し付きの機能的なバルコニー。
LDK
当社施工例:吹き抜けの開放感と、木目の温もりが心地よいリビング。
キッチン
当社施工例:タカラスタンダード「オフェリア」採用。お手入れしやすく、機能性に優れたキッチン。
吹抜け
当社施工例:吹抜けで自然光を取り込み、縦の広がりを感じる快適な空間。
洗面台
当社施工例:三面鏡付き洗面化粧台。鏡裏収納とソフトクローズの引き出しを備えています。
浴室
当社施工例:柔らかなグレージュが心地よいバスタイムを演出。
トイレ
当社施工例:清潔感と使いやすさを両立したウォシュレット一体型トイレ。
洋室
当社施工例:ブルーのアクセントクロスが映える、爽やかな洋室。
洋室
当社施工例:落ち着いた雰囲気で、家族がのんびり過ごせる洋室。
シューズインクローゼット
当社施工例:衣類や季節物をすっきり収納できるウォークインクローゼット。
玄関
当社施工例:アウトドア用品の収納に便利なシューズインクローゼット。
物件のおすすめポイントコメント
《物件の特徴》
◇設備:東京電力・公営水道・本下水・都市ガス
◇大成住宅では自由設計対応!
一級建築士がお客様の生活スタイルに合わせた
夢のマイホームをご提案&サポート致します!
◇こだわりの施工プラン多数ご用意してお待ちしております^^
《周辺環境》
◇教育施設
・宗岡小学校(徒歩10分)
・宗岡第二中学校(徒歩15分)
◇商業施設
・ヤオコー志木 (徒歩9分)
・ドラッグストアセキ (徒歩4分)
・ドラッグセイムス (徒歩7分)
PROPERTY INFO
物件詳細情報
基本情報
お問い合わせ番号
38995817
価格
2590万円
所在地
埼玉県志木市 中宗岡5丁目
交通
東武東上線「志木」駅 バス乗車10分+徒歩7分(いろは橋停)
東武東上線「志木」駅 徒歩27分
詳細情報
土地面積
100.09㎡
建築条件
無し
建ぺい率
60%
容積率
199%
販売区画数
1
総区画数
5
設備
都市ガス / 公営水道 / 本下水 / 閑静な住宅地 / 開発分譲地内 / 整形地 / スーパー10分以内 / 公園5分以内 / 小学校徒歩10分以内 / 始発駅
接道状況
一方、 南東 4m 私道
土地権利
所有権
地目
宅地
都市計画
市街化区域
用途地域
第一種低層住居専用地域
引渡時期
相談
現況
更地
媒介
取引態様
仲介
法令上の制限
その他制限事項:22条区域 掃施設持分あり(4.09㎡×1/5) 未利用地持分あり(8.42㎡×1/5)
備考
私道負担面積137.24(持分1/5有)
更新日
2026年5月4日
更新予定日
2026年5月18日
AREA & MAP
周辺環境・地図
志木市立宗岡小学校
750m
徒歩10分
志木市立宗岡第二中学校
1200m
徒歩15分
セブンイレブン志木中宗岡1丁目店
500m
徒歩7分
ローソン志木下宗岡店
600m
徒歩8分
ヤオコー志木宗岡店
700m
徒歩9分
ドラッグストアセキ中宗岡店
290m
徒歩4分
志木いろは橋クリニック
550m
徒歩7分
東武東上線「志木」駅
2100m
徒歩27分
一覧へ戻る
CONTACT
お問い合わせ
お問い合わせ
0120-52-1777
10:00~19:00 /
定休日火曜・水曜